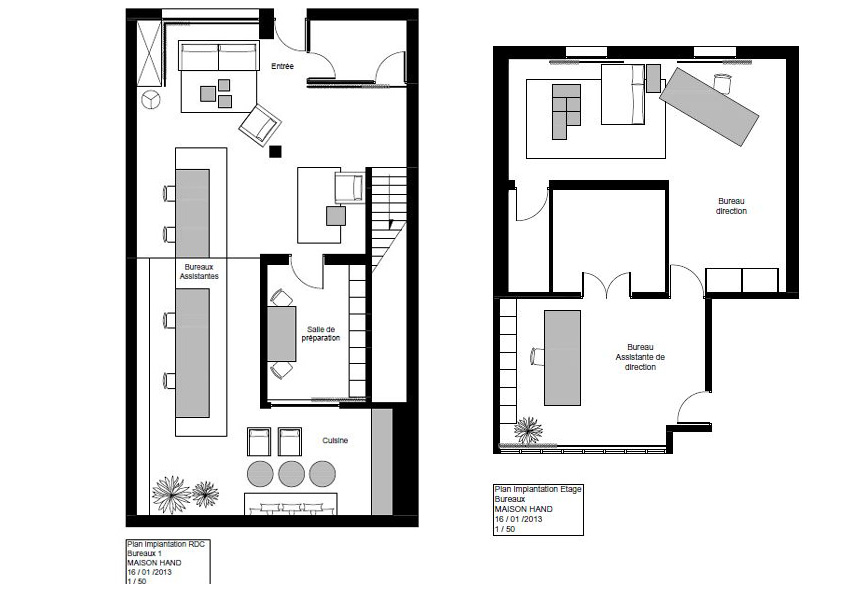
Maison Hand Lyon - Bureau d'Etudes

[Précédente][Index][Suivante]

Maison Hand Lyon - Bureau d'Etudes - Conception plans d'implantation